Transformation ancienne ferme en 12 appartements

“Comment transformer un bâtiment classé en douze logements contemporains sans en altérer l'identité patrimoniale ? ”


Contexte
Une ancienne ferme, inscrite à l'inventaire cantonal du patrimoine bâti, se trouvait à un point de rupture entre sa vocation agricole d'origine et son potentiel résidentiel. En Suisse, la Loi fédérale sur la protection de la nature et du paysage (LPN) ainsi que les législations cantonales imposent un cadre strict pour toute intervention sur un bâtiment classé ou inventorié : la substance historique doit être préservée, les volumétries respectées et toute reconstruction au-dessus de l'existant doit être réalisée à l'identique. Par ailleurs, la transformation d'un bâtiment agricole en logements implique un changement d'affectation soumis à la Loi sur l'aménagement du territoire (LAT), notamment ses articles 24c et 24d, qui encadrent rigoureusement les modifications de constructions situées hors zone à bâtir. L'obtention du permis de construire exigeait de démontrer que l'identité architecturale du bâtiment serait intégralement maintenue, tout en répondant aux normes contemporaines d'habitabilité, de performance énergétique et de sécurité structurelle.
Problématique
Le défi était triple : satisfaire les exigences de la commission cantonale du patrimoine, respecter le cadre légal de l'aménagement du territoire et concevoir douze appartements fonctionnels à l'intérieur d'une enveloppe qu'il était interdit d'altérer.
Question clé
Comment concilier les exigences de la LAT, de la LPN et des normes SIA pour donner une seconde vie à un bâtiment agricole classé ?

Solution
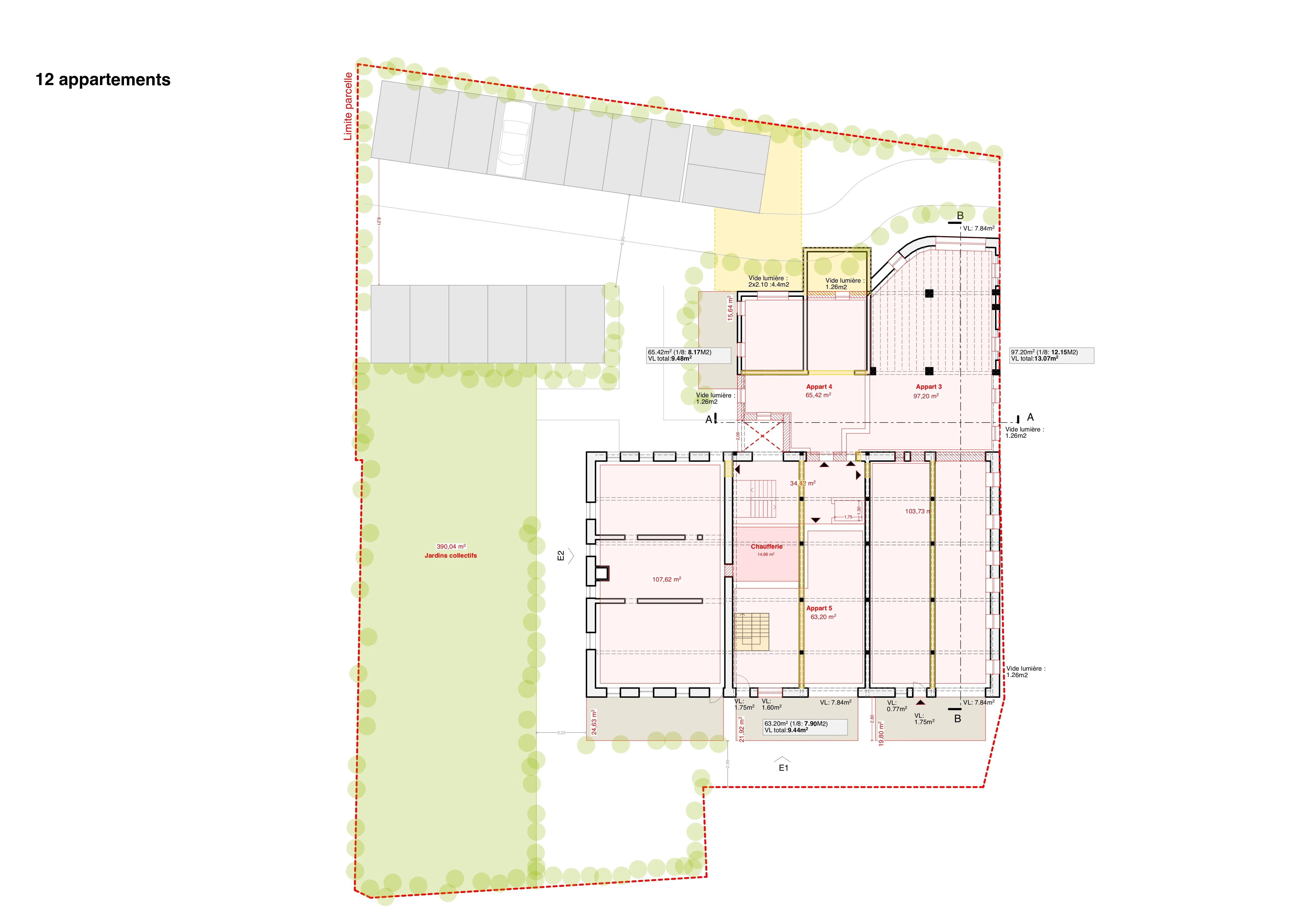
Pour concilier préservation patrimoniale et transformation fonctionnelle, nous avons mis en place un protocole de relevé hybride combinant technologie numérique et expertise terrain. Un relevé LiDAR (Light Detection and Ranging) haute densité a été réalisé sur l'ensemble du bâtiment, générant un nuage de points tridimensionnel d'une précision millimétrique. Ce modèle nous a permis de documenter avec exactitude chaque déformation structurelle, chaque irrégularité de façade et chaque élément constructif, données indispensables pour constituer le dossier patrimonial exigé par les autorités cantonales et pour garantir la fidélité de toute reconstruction à l'identique. En parallèle, un relevé physique sur site a été conduit pour corroborer les données numériques, vérifier l'état des matériaux, identifier les pathologies structurelles et valider les cotes dans les zones inaccessibles au scanner. Cette double lecture, numérique et manuelle, a constitué la base d'un modèle BIM précis, support de l'ensemble des études de faisabilité, des calculs structurels et du dialogue avec les services cantonaux de protection du patrimoine.


Description
Le projet final traduit un équilibre rigoureux entre conservation et habitabilité. Les douze appartements s'inscrivent dans les limites volumétriques de la ferme d'origine, exploitant les hauteurs sous poutre, les épaisseurs de murs porteurs et les orientations existantes pour distribuer les espaces de vie. Là où la structure devait être reconstruite, toiture, éléments de charpente, portions de façade, chaque intervention a été exécutée à l'identique, conformément aux prescriptions du classement patrimonial, en utilisant des matériaux et des techniques compatibles avec la substance historique du bâtiment.


